Young generation

Un cabinet stomatologic aflat în București, pe bulevardul Griviței, situat într-un apartament cu două camere, la parterul unui bloc. Familia doctor Ioniță și-a dorit să profeseze într-un cabinet modern, cu un aspect plăcut și minimalist, un spațiu foarte bine organizat și dotat cu tehnologie de ultimă oră în domeniul stomatologic.
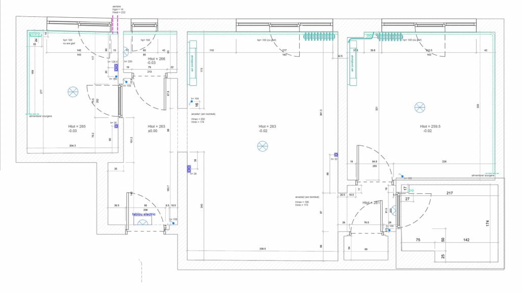
Deși acest apartament a avut și înainte funcția de cabinet stomatologic, el nu îndeplinea cerințele actualilor proprietari, fiind necesară încă o sală de tratament.
Accesul în cabinet se face printr-un hol la capătul căruia se află o placare cu oglindă, folosită pentru a mări spațiul restrâns de acces, în fața căreia este poziționată recepția. De asemenea, o latură a holului este placată pe toata lungimea cu un material rezistent, ce imită lemnul (LVT) și care aduce căldură si transformă instant ambientul într-unul primitor. Vizavi de ușa de intrare am folosit o compartimentare ușoară din PAL placat cu oglindă pentru a crea o depozitare ascunsă și să mascăm intrarea în spațiul personal. Prin aceeași metodă de separarea a spațiilor, sterilizarea este „ascunsă„ fără să întrerupem vizual linia estetică a peretelui. Pentru a realiza diferențierea dintre spațiul personal și sterilizare am folosit compartimentarea de sticlă, care să permită accesul luminii naturale și in ”coltul pentru cafea”.
Aceeași soluție a fost folosită si pentru împărțirea fostei săli de așteptare, iar zonele rezultate – noua sala de tratament si noua zona de așteptare, reușesc să deservească celor două funcții fără a face rabat din punct de vedere practic.
Pentru că apartamentul este la parterul unui bloc, în fața căruia este o vegetație bogată, ne-am concentrat pe planul de iluminat, să asigurăm o cantitate corespunzătoare de lumeni pentru un spațiu de lucru medical și nu numai. Luminile led integrate în placările cu oglindă ne asigură atât un flux de circulație pentru pacienți cât și o atmosferă calmă și liniștită în zona de așteptare.
Putem spune că fiecare dintre sălile de tratament are o personalitate anume, croită după caracterul și placul domnului și doamnei doctor. În ambele am adoptat o paleta de culori desaturate, relaxante, care sunt reflectate într-o schemă ton sur ton prin finisajele folosite pentru pardoseala si pereți. Astfel am creat un mediu de lucru optim din prisma doctorilor și o ambianță confortabilă pentru pacienți.